Skip to content

1A: Onshape Fundamentals - Section 1

Exercise 6: Triangle Frame

All of our box tubes have been perpendicular to each other. Sometimes, you’ll have frames that are angled.

Team 4414, Hightide, doing a triangle frame.

Your Task

In this exercise, you will create a large box tube frame in the shape of a right triangle.

  • Try to copy the example triangle frame.
  • Create or add to the side layout sketch first, then reference it as you build the frame.
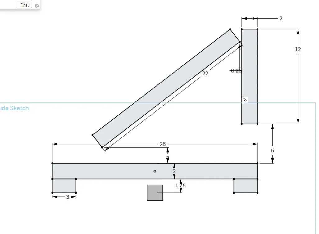
  • Mess with the aligned rectangle tool in your layout sketch to create the geometry. Additional information and the sketch is shown below.
Triangle frame example (angled box tubes)

Aligned Rectangle

An angled rectangle can be created by using the aligned rectangle sketch tool (Use Alt+C or look under the rectangle tool dropdown). The angle of the tube needs to be defined somehow; this can be done either by distance or angle, depending on what we need.

Triangle frame example (angled box tubes).
Triangle frame sketch.

Finishing Up

When you're done with the triangle frame, take a 5 minute break.

When you come back, check over what you've done. Are there any interferences? Did you reference the layout sketch as much as you could? Try editing the layout sketch to see if the frame adjusts accordingly. If your frame doesn't change according to the layout sketch, what could you change about your CAD so that it does?

Once you're done checking over your frame, move on to Section 2 to start practicing sketching gussets and plates!